Mh-Maufay -- Mobil-Home -- Puy Du Fou - 30 Min La Boissiere-de-Montaigu
Mh-Maufay -- Mobil-Home -- Puy Du Fou - 30 Min
Preview only — see all hotel photos
See all 55 photos 1 /
55
8.7
89 anmeldelser
Best options for your travel dates
Vis hotel på kort
Mh-Maufay -- Mobil-Home -- Puy Du Fou - 30 Min
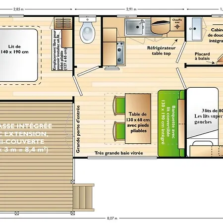
Mobil-Home - Puy Du Fou ligger inden for 3 km fra Retenue de la Bultiere og har vandrutsjebaner, terrasse-restauranten og et picnicområde. Den indkvartering er udstyret med kaffe- og tefaciliteter, et opholdsområde, røgdetektorer.
Logis de la Roche-Thevenin er ca. 10 minutters kørsel væk. 20 minutter til centrum i La Boissiere-de-Montaigu.
Badeværelsesfaciliteterne er udstyret med separat toilet og en bruser.
Indkvarteringen tilbyder også et fuldt udstyret køkken. Villaen ligger i La Boissiere-de-Montaigu kun 55 km fra Nantes Atlantique lufthavn. Gæsterne kan slappe af på en terrasse og svømme i opvarmet pool.
Mere +
Mindre -
Vent venligst, vi tjekker tilgængelige værelser til dig.
Vi søger hoteller
Faciliteter
Hovedfunktioner
- Swimmingpool
- Aktiviteter
- Børnevenlig
- Aircondition
- Kæledyr
Faciliteter
General:
- Rygning forbudt på alle fælles- og privatområder
- Parkering
- Kæledyr tilladt
- Røgdetektorer
- Brandslukkere
- Nøgleadgang
Middag:
- Kedel
- Køkkengrej/ Køkkenredskaber
- Udendørs spiseområde
- Picnic område/ Borde
Sport og Fritid:
- Sæsonåben udendørs pool
- Opvarmet swimmingpool
- Solseng
- Have
- Grillfaciliteter
- Fiskeri
Bekvemmeligheder på værelset:
- Klimaanlæg
- Varme
- Dagligstue
- Terrasse
- Te- og kaffefaciliteter
- Spisebord
- Fladskærms TV
- Tremmesenge/vugger
- Legeområde til børn
- Børneklub
Politik
Indtjekning: fra 16:00 indtil 23:59
Udtjekning: indtil 11:00
Kort
Lokale seværdigheder
Lufthavne
- Nantes Atlantique Lufthavn (54 km)
Anmeldelser
Skriv anmeldelse
100% Verificerede anmeldelser
8.7 /10